一、征集方案概况
为满足青年教师对优质生活与工作环境的需求,全面提升新校区的工作及生活居住体验,新校区(五马山南面片区)青年教师公寓楼需配套相应家具,现需对相关家具进行集中采购。本项目后期将进行公开招标,评标办法为最低价评标法。现将采购项目内容、规格要求、征集时间等事项公告如下,欢迎有资质、有能力的公司积极为本项目提供完善的技术及商务方案。
序号 | 名称 | 规格 | 数量 | 单位 | 单价 |
1 | 实木床 | 宽1.5m | 82 | 张 | |
2 | 实木床 | 宽1.2m | 57 | 张 | |
3 | 床垫 | 宽1.5m | 82 | 张 | |
4 | 床垫 | 宽1.2m | 57 | 张 | |
5 | 床头柜 | 0.5m*0.5m | 139 | 个 | |
6 | 衣柜 | 多层板,1.63m*0.6m*2.7m | 110 | 个 | |
7 | 沙发 | 布艺材质,长1.8m | 82 | 张 | |
8 | 茶几 | 台面为岩板,长1.0m*宽0.6m | 82 | 张 | |
9 | 书桌1 | 长1.5m*宽0.55m | 83 | 张 | |
10 | 书桌2 | 长1.2m*宽0.55m | 56 | 张 | |
11 | 椅子 | 与书桌配套 | 139 | 张 | |
12 | 总价 | 元 |
二、征集方案内容
三、项目采购预算
本项目采购预算总金额为人民币797800元。
四、征集方案要求
1.本项目方案应遵循青年教师公寓宿舍的功能性,本着科学合理、安全可靠、易维护等原则进行设计;
2.本项目方案中所有的商品材质需选用环保实用无污染材料,色彩要明亮和谐统一,营造舒适温馨的生活环境;
3.报价不得超出项目总预算金额;
4.满足学校拟采购货物商品所列的主要技术参数及商品限价要求;
5.针对学校拟采购货物商品的功能、性能指标等技术参数,在要征集的采购方案中应该要有更加全面、具体的描述,以达到作为政府公开招标采购方案要求;
6.在要征集的采购方案中不得出现歧视性或倾向性的关键词或内容条款,供应商应按照总预算金额的标准提供最优的设备配置方案。
五、其他要求
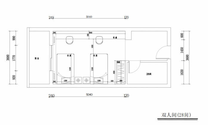
1.本项目方案提供平面布置图(详见附件),仅供参考。
2.递交的项目方案征集材料内容需要提供完整准确的项目报价方案,包括技术参数、数量、预算单价及总价、设计图(如有)、售后服务承诺等。
(1)意向单位资质条件:
①工商营业执照复印件一份。
②法人及代理人身份证复印件一份(正反两面)。
③法人授权书原件(若代理人与法人为同一人,无需提供此件)。
3.征集方式:电子邮件征集,本次征集不接受除电子邮件以外的其他应征方式。发送电子邮件至469097163@qq.com。
4.征集单位不向任何方案提供方支付任何费用,不接受联合体参加方案征集,所有征集的设计方案将无偿提供给学校使用。
注:①递交的方案中技术参数应为共性参数,不得为某单一品牌产品的技术参数。
②若供应商递交的方案被征集单位推选为中选方案,视为该供应商为本项目提供了整体的设计服务,将不得参与后续的招投标活动。
③所提交方案版权归征集单位所有,征集单位可自行对征集到的方案(建议)进行合理合法的深化。
5.方案有下列情况之一的将被视为无效:
①方案征集稿逾期送达的;
②提交的文件不符合本文件规定的内容或格式的;
③图片和文字辨认不清、内容不全的;
④属抄袭作品的。
六、征集时间安排
方案征集时间:2025年5月20日下午17:00至5月23日下午17:00止,逾期不予受理。
七、征集单位联系人
征集单位:福建技术师范学院后勤管理处
地址:福建省福清市龙江街道校园新村1号
联系方式:杨老师0591-85260239
八、附则
1.所有参加单位提交的文件在评审后不予退回。
2.本次征集活动的解释权归征集单位。
附件:青年教师公寓平面布置图(参考)
